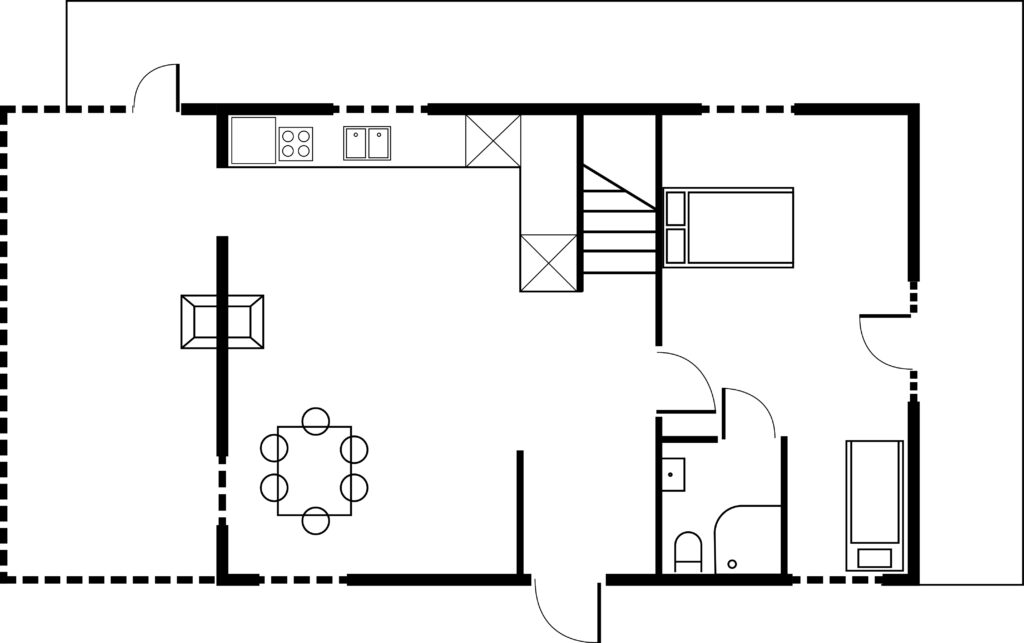
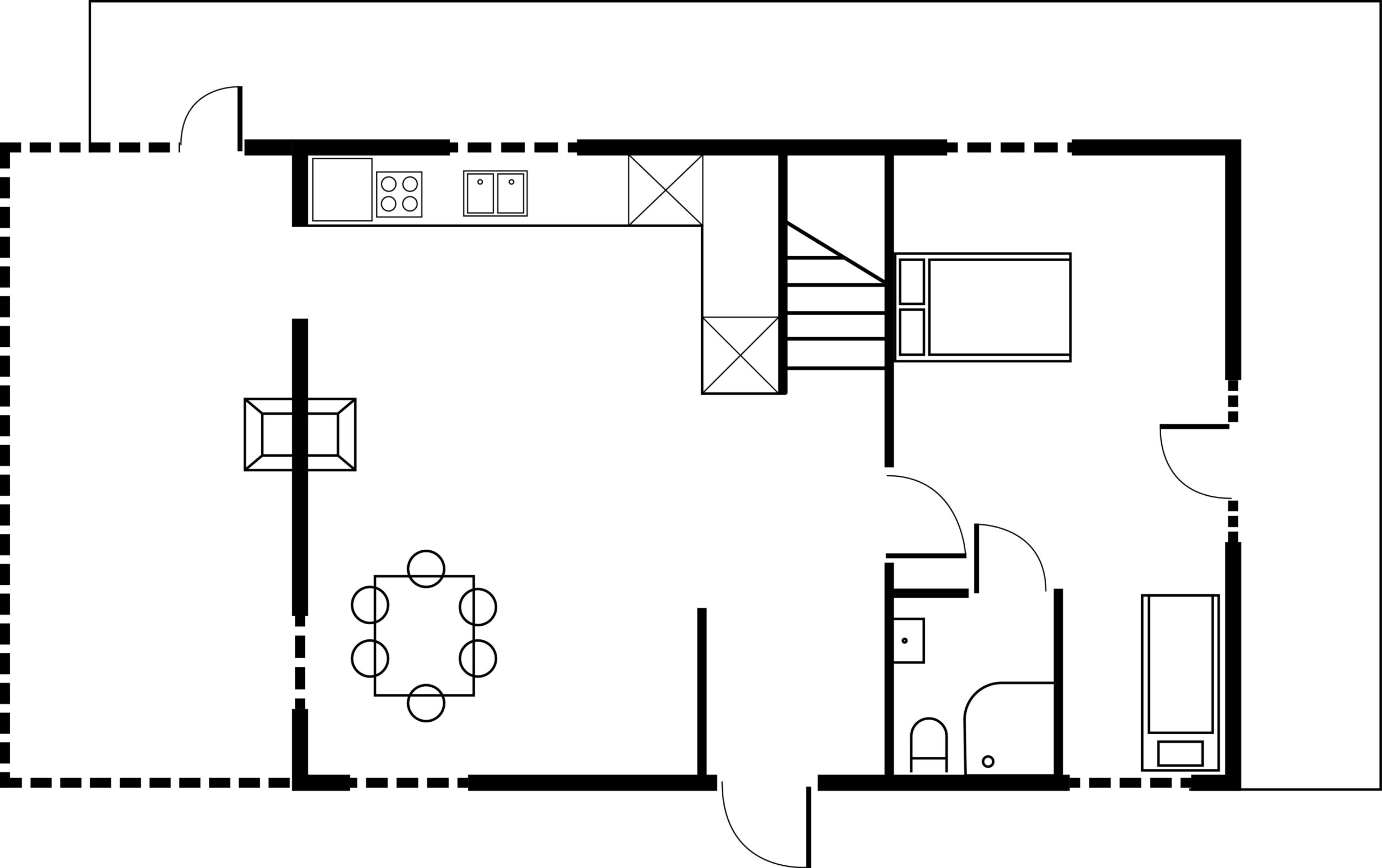
Dane – Media – Liczby – Rzuty:
Dom zbudowany w 2018 roku z doskonale wysezonowanych, 100-letnich, zdrowych bali pochodzących z łemkowskiej chyży, dodatkowo ocieplony wełną mineralną, dach pokryty stylową dachówką.
Parking na 5-6 samochodów (w zależności od wielkości samochodów).
Ogrzewanie gazowe (zbiornik z gazem mieści się na terenie posesji i znajduje się w uroczym budynku gospodarczym, nawiązującym architektonicznie do stylistyki domu – też z drewnianych bali).



Woda: studnia głębinowa (głębokość 42 m); ścieki: przydomowa oczyszczalnia.
Prąd: instalacja fotowoltaiczna założona w 2023 r. oraz standardowa sieć energetyczna.
Instalacja alarmowa i monitoringu
Internet: satelitarny
LOKALIZACJA – ROPKI 24
- Wysowa-Zdrój ~ 5 km
- Krynica-Zdrój ~ 20 km
- Nowy Sącz ~ 50 km
- Tarnów ~ 80 km
- Kraków ~ 150 km

pocztówka – wizja artystyczna
Rzuty bardzo „poglądowe” – powiększają się po kliknięciu:


